首 页
公司简介
产品介绍
应用特点
产品知识
研发机构
销售网络
联系我们
产品推荐
:
LZ-4基本型可挠金属电线保护套管
→
LN-4B不锈钢可饶金属电线保护套管
→
LV-5/LV-5Z包塑可挠金属电线保护套管(聚氯乙烯覆层套管)
LZ-4基本型可挠金属电线保护套管
LN-4B不锈钢可挠金属电线保护套管
LV-5/LV-5Z包塑可挠金属电线保护套管
可挠金属电气导管KVZ阻燃型
可挠金属电气导管KV防水型
可挠金属电气导管KZ基本型
聚氯乙烯覆层套管
dNG隔爆型防爆可挠金属电线保护套管
ENG增安型防爆可挠金属电线保护套管
LA-1/2/3铝制可挠金属电线保护套管
LC-1/2/3铜制可挠金属电线保护套管
LZ-1/2镀锌制可挠金属电线保护套管
接线箱连接器
直接头连接器
无螺纹连接器
混合连接器
绝缘护套
连接器绝缘护套
防水型接线箱连接器
防水型混合连接器
防水型90°弯角混合连接器
防水型45°弯角混合连接器
防水型直头连接器
固定夹子
接地夹
切割刀
水泵钳子或鲤鱼钳子
包塑软管
软管接头
不锈钢波纹管
塑料波纹管
直接头连接器
详细图解
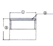
①:L ②:可挠金属套管螺纹 ③:ΦD
直接接头连接器规格表
型号
可挠金属套管规格
L mm
ΦD mm
KS-12
LZ
LA
LC
12#
33
22.8
KS-15
15#
33
22.8
KS-17
17#
39
25.0
KS-24
24#
43
32.8
KS-30
30#
47
39.4
KS-38
38#
53
47.8
KS-50
50#
53
60.2
KS-63
63#
73
76.3
KS-76
76#
73
89.1
KS-83
83#
73
97.7
版权所有 © 泰州市泰普金属套管有限公司 Copyright 2009 - 2010
苏ICP备16068660号-1
技术支持:
PCLINK